Property Details
Basic Information
- Property Type: Single Family
- MLS Number: 5058783
- Status: ACT
- List Price: $4,995,000
- Date Price Change: 08/28/2025
- Lot Description: Waterfront
- Acreage: 0.39
- Foreclosure: No
- Virtual Tour: Virtual Tour
- Seasonal: No
Building
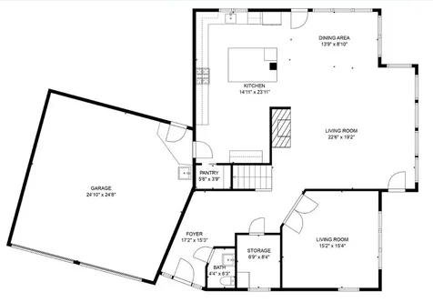
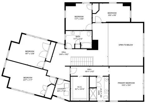
- Square Feet: 3,719
- Year Built: 2020
- Zoning: SFR
- Stories: 2
- Roof: Architectural Shingle
- Building Construction: Cedar Exterior
- Foundation: Concrete
- Garage Spaces: 4
Location
- Town: Gilford
- County: Belknap
- State: NH
- Zip: 03249
Water-Access Details
- Water Access: Owned
- Water Access Details: Dock Access
- Water View: Yes
- Water Body Name: Lake Winnipesaukee
- Water Body Type: Lake
- Water Frontage Length: 160
Interior Features
Bedrooms
- Bedrooms: 5
Bathrooms
- Bathrooms: 4
- 3/4 Baths: 1
Basement
- Basement: Concrete Floor, Crawl Space
Exterior Features
Features
- Parking Description: Direct Entry, Finished, Heated Garage, Driveway, Garage, Parking Spaces 6+, Paved, Attached, Detached
- Driveway: Paved
- Road Frontage: 155
- Garage: Yes
- Garage Spaces: 4
Utilities and Appliances
Utilities and Appliances
- Utilities: Underground Utilities
- Heat System: Propane, Forced Air, Hot Air, Multi Zone
- Water: Public
- Sewer: Public
Community
Schools
- Elementary School: Gilford Elementary
- Junior High: Gilford Middle
- High School: Gilford High School
Other Details
Finance
- Taxes: $25,348































































